Details
GRAND TOWER AKAIKE(グランドタワー赤池)
新築分譲マンション

< 最終1邸/全112邸 >即入居可能な南東角住戸4LDK・87.85㎡。始発駅徒歩5分×プライムツリー赤池近接。
- イチ押し
- 地域
- 日進市・東郷町
- 住所
- 愛知県日進市赤池町箕ノ手
更新日:2025年10月16日 次回予定日・取引条件の有効期限:2025年10月30日

外観写真(2025.2月撮影)
画像をクリックすると大きく表示します
-
外観写真(2025.2月撮影)
-
外観写真(2025.2月撮影)
-
外観写真(2025.2月撮影)
-
外観写真(2025.2月撮影)
-
メインエントランス写真(2025.2月撮影)
-
車寄せスペース写真(2025.2月撮影)
-
自走式立体駐車場写真(2025.2月撮影)
-
自走式立体駐車場(1F屋根付区画)写真(2025.2月撮影)
-
風除室写真(2025.2月撮影)
-
メインエントランス写真(2025.2月撮影)
-
エントランスホール・吹抜け写真(2025.2月撮影)
-
ラウンジエリア写真(2025.2月撮影)
-
コンシェルジュカウンター写真(2025.2月撮影)
-
中庭スペース写真(2025.2月撮影)
-
立地概念図image
-
自走式立体駐車場イラストimage
-
交通アクセス図
-
売主紹介
物件概要
最終期・先着順【販売概要】
- 販売戸数
- 1戸
- 販売価格(税込)
- 6,630万円
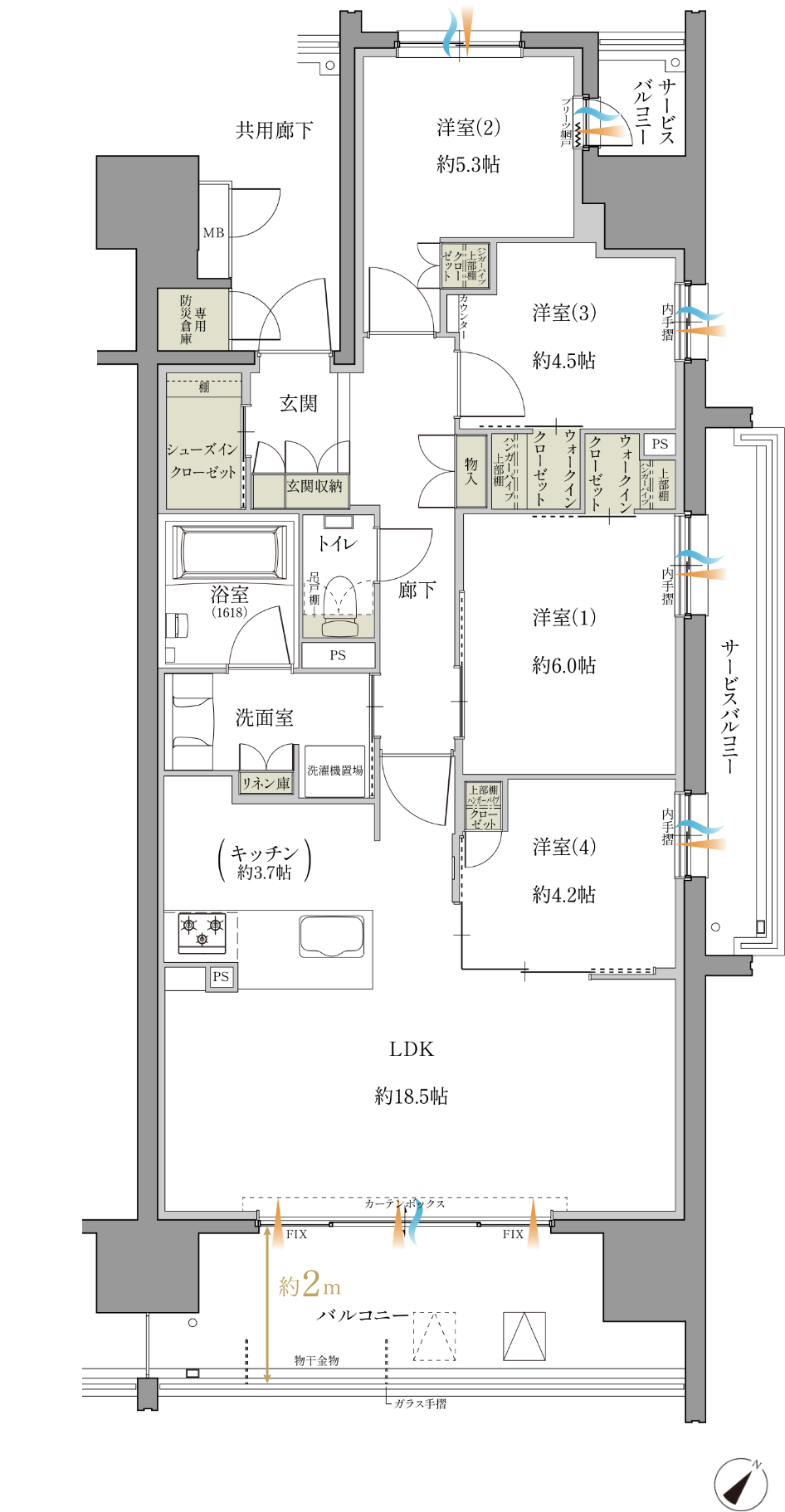
- 間取り
- 4LDK
- 住戸専有面積
- 87.85㎡
- バルコニー専有面積
- 13.60㎡
- サービスバルコニー面積
- 9.16㎡
- 管理費(月額)
- 14,300円
- 修繕積立金(月額)
- 7,100円
- 駐車場使用料(月額)
- 12,000円・13,500円
- 修繕積立基金(お引渡し時一括払)
- 596,400円
- 管理準備金(お引渡し時一括払)
- 10,000円
- 申込受付場所
- すまいる館 赤池店
- その他
- ※お申し込みの際には印鑑(認印可)と2023年・2024年の収入証明書、又は直近3期分の確定申告書(写し)をご持参ください。 ※表示価格には消費税が含まれています。
- 取引条件の有効期限
- 本ページ上部に記載
資金計画シミュレーション(F606号室)
- 月々返済額
- 79,594円
- ボーナス返済額
- 438,261円
- 物件価格(税込)
- 6,630万円
- 借入金額
- 6,630万円
- 自己資金
- 0円
- 返済期間
- 45年
- 融資実行金利
- 1.0%
- 金利タイプ
- 変動金利
- 借入金融機関(提携ローン)
- 弊社提携のローン優遇措置・引き下げ条件を満たした場合です。
- 返済方式
- 元利均等返済
- 融資限度額
- 7,000万円(諸条件により異なります。)
- その他
- 別途、諸費用・駐車場使用料がかかります。
GRAND TOWER AKAIKE(グランドタワー赤池)【全体概要】
- 名称
- GRAND TOWER AKAIKE(グランドタワー赤池)
- 所在地
- 愛知県日進市(仮換地)日進赤池箕ノ手土地区画整理事業地内4街区1、2、3、4、5、6、13番(該当地番)日進市赤池町箕ノ手2番11、2番127、2番131、2番1404、2番1405、2番1407、2番1616、2番1617、2番1618、2番1619、2番2390、赤池二丁目905番
- 交通
- 地下鉄鶴舞線・名鉄豊田線「赤池」駅徒歩5分
- 用途地域
- 近隣商業地域
- 建ぺい率/容積率
- 80%/300%
- 総戸数
- 112戸
- 敷地面積
- 2,968.30㎡(仮換地地積)
- 建築面積
- 2,062.19㎡
- 建物延床面積
- 13,450.54㎡(容積対象面積8,902.93㎡)
- 構造・規模
- 鉄筋コンクリート造地下1階地上19階建
- 建築確認番号
- 第ERI-22025450号(2022年8月25日)/(建築確認変更番号)第ERI-23015831(2023年5月31日)
- 間取り
- 2LDK、3LDK、4LDK
- 専有面積
- 66.80㎡~87.85㎡
- バルコニー面積
- 11.40㎡~18.84㎡
- サービスバルコニー面積
- 9.16㎡
- 駐車場
- 123台(自走式立体駐車場)/※月額使用料:6,000円~13,500円 ※BEV充電設備利用料:月額6,000円
- 自転車置場
- 125台(ラック式78台+平置式47台)/※月額使用料:300円(ラック式)・400円~500円(平置)
- バイク置場
- 11台/※月額使用料:2,000円
- TVインターネット使用料
- TV視聴サービス料:※月額594円/インターネット使用料:月額880円
- 竣工時期
- 2025年2月
- 入居時期
- 諸手続き完了後 即入居可
- 分譲後の権利形態
- 所有権:敷地は共有、建物は区分所有
- 管理形態
- 区分所有者全員により管理組合を結成し、管理会社に委託していただきます。
- 管理方法
- 巡回管理
- 取引態様
- 売主
- 売主
- トヨタすまいるライフ株式会社/〒473-0902 愛知県豊田市大林町1丁目81番地/TEL:0565-28-3500(代表) /建設業許可番号:愛知県知事許可(特-7)第46207号/宅地建物取引業免許:愛知県知事(15)第3842号/一級建築士事務所:愛知県知事(い-5)第4274号/(一社)中部不動産協会会員東海不動産公正取引協議会加盟
- 売主②
- 明和地所株式会社<国土交通大臣(9)第4118号>/ 〒150-8555 東京都渋谷区神泉町9-6 明和地所渋谷神泉ビル/(一社)不動産協会会員 (公社)首都圏不動産公正取引協議会加盟
- 設計・監理
- 株式会社野口建築事務所
- 施工
- 徳倉建設株式会社
- 管理
- トヨタすまいるライフ株式会社
- その他
- ※本物件は定期借地権付物件ではございません(別途月払地代や解体準備金は不要)。定期借地権のように契約期間終了後に土地を返還する必要はございません。
最新情報
-
2025.10.17 INFO グランドタワー赤池 いよいよ4LDK"最終1邸"南東角住戸のみ。
マンション建物内を実際に内覧いただくことが可能です。 -
2025.10.03 INFO グランドタワー赤池 住戸成約に伴い販売状況(物件概要)を更新いたしました。
いよいよ最終1邸 Fタイプ4LDK(606号室)のみの販売となりました。 -
2025.10.01
SITE
グランドタワー赤池 最終2邸 Fタイプ4LDK特別商談会開催中。
実際にマンション建物内にて内覧いただくことが可能です。ご来場はこちらをクリックください。 -
2025.09.18 INFO グランドタワー赤池 住戸申込に伴い販売状況(物件概要)を更新いたしました。
いよいよ"残り2邸"のみの販売でございます。販売住戸はFタイプ87.85㎡4LDK南東角住戸です。 -
2025.09.16 INFO グランドタワー赤池 住戸申込に伴い販売状況(物件概要)を更新いたしました。
いよいよ"残り3邸"のみの販売でございます。 -
2025.09.12
SITE
グランドタワー赤池 間取りページ(Ftype)を更新しました。
360°パノラマツアーのインテリアコーディネートや視点(シューズインクローゼットなど)を追加いたしました。 -
2025.09.05
SITE
グランドタワー赤池 最終4邸商談会を開催いたします。
ご来場はこちらをクリックください。
動画
グランドタワー赤池 物件ムービー
パノラマ
グランドタワー赤池 Fタイプ(4LDK)パノラマ
グランドタワー赤池 共用空間
周辺環境
-
- 交通機関
-
- 地下鉄鶴舞線・名鉄豊田線「赤池」駅 3番出口 / 約340m(徒歩5分)
- 名鉄バス「赤池駅南」停 / 約300m(徒歩4分)
- 名鉄バス「赤池駅」停 1番乗り場 / 約390m(徒歩5分)
- 名古屋第二環状自動車道「植田」IC外回り入口 / 約3,140m(車5分)
- 東名高速道路「名古屋」IC入口 / 約6,770m(車11分)
- 市立日進西中学校 / 約1,330m(徒歩17分)
-
- 買物施設
-
- プライムツリー赤池 / 約150m(徒歩2分)
- ピアゴ ラ フーズコア赤池店 / 約320m(徒歩4分)
- ファミリーマート 赤池駅前店 / 約350m(徒歩5分)
- ヤマダデンキ テックランド日進店 / 約960m(徒歩12分)
- ニトリ日進店 / 約1,020m(徒歩13分)
- K.COLY-COLY / 約280m(徒歩4分)
- 愉之香珈琲赤池店 / 約150m(徒歩2分)
- セ・シュエット / 約2,620m(車4分)
- SEASONAL-LAB / 約860m(徒歩11分)
-
- 教育施設
-
- ル クール保育園 赤池 / 約80m(徒歩1分)
- あずま♪ららら保育園 / 約150m(徒歩2分)
- 市立赤池小学校 / 約630m(徒歩8分)
- 西部保育園 / 約640m(徒歩8分)
- 名古屋記念病院 / 約1,540m(車3分)
-
- 公共施設・公園
-
- レトロでんしゃ館 / 約410m(徒歩6分)
- 赤池公民館 / 約760m(徒歩10分)
- 日進市生涯学習プラザ / 約960m(徒歩12分)
- 日進市スポーツセンター / 約2,430m(車4分)
- 日進市役所 / 約2,840m(車5分)
- 前田公園 / 約260m(徒歩4分)
- 中島公園 / 約500m(徒歩7分)
- 丸根公園 / 約510m(徒歩7分)
- 平池公園 / 約680m(徒歩9分)
- 上納池スポーツ公園 / 約890m(徒歩12分)
-
- 医療施設
-
- 赤池エンゼル皮ふ科(プライムツリー赤池内) / 約150m(徒歩2分)
- プライムツリーこどもクリニック(プライムツリー赤池内) / 約150m(徒歩2分)
- プライムツリー赤池眼科(プライムツリー赤池内) / 約150m(徒歩2分)
- ラピス歯科室 / 約240m(徒歩3分)
- ワイワイデンタルクリニック赤池 / 約270m(徒歩4分)
- 医療法人杉本クリニック / 約330m(徒歩5分)
- 並木病院 / 約1,080m(車2分)
-
- その他
-
- セブン銀行ATMプライムツリー赤池店 / 約180m(徒歩3分)
- 三井住友銀行 赤池支店 / 約390m(徒歩5分)
地図
この物件の資料請求・
お問い合わせ
物件情報・周辺環境・契約手続きについて等、ご不明な点がありましたら、お気軽にお問い合わせください。
すまいる館 赤池店
- 通話料無料0120-993-168