Details
Tステージ 豊田四郷 レガリア EAST
新築分譲マンション

最大専有面積89㎡超。駅徒歩2分×自走式駐車場118%完備の即入居可マンション。
- イチ押し
- 地域
- 豊田市
- 住所
- 愛知県豊田市四郷町森前南7-4
更新日:2025年10月03日 次回予定日・取引条件の有効期限:2025年10月17日

物件概要
1邸限定 J301申込キャンセル住戸販売【販売概要】
- 販売戸数
- 1戸
- 販売価格(税込)
- 4,490万円 ※価格公示日2025年9月12日 (旧販売価格:4,960万円※価格公示日2024年4月22日)
- 間取り
- 4LDK
- 住戸専有面積
- 89.58㎡
- バルコニー専有面積
- 17.20m²
- サービスバルコニー面積
- 4.56㎡
- 管理費(月額)
- 14,900円
- 修繕積立金(月額)
- 6,800円
- 修繕積立基金(お引渡し時一括払)
- 571,200円
- 管理準備金(お引渡し時一括払)
- 30,000円
- 申込受付場所
- すまいる館 四郷店
- その他
- ※本対象住戸については他のキャンペーンや法人紹介制度などとの併用はできません。予めご了承ください。※2025年12月末までの引渡しを条件とします。※お申し込みの際には印鑑(認印可)と2023年・2024年の収入証明書、又は直近3期分の確定申告書(写し)をご持参ください。 ※表示価格には消費税が含まれています。
- 販売開始予定時期
- 2025年9月13日(土)より先着順申込受付開始
- 取引条件の有効期限
- 本ページ上部に記載
先着順【販売概要】
- 販売戸数
- 6戸
- 販売価格(税込)
- 4,770万円~5,250万円
- 間取り
- 3LDK・4LDK
- 住戸専有面積
- 84.74㎡~89.58㎡
- バルコニー専有面積
- 16.06㎡~17.20㎡
- サービスバルコニー面積
- 3.20㎡~4.56㎡
- 専用庭面積
- 13.20㎡
- 管理費(月額)
- 14,100円~14,900円
- 修繕積立金(月額)
- 6,400円~6,800円
- 修繕積立基金(お引渡し時一括払)
- 537,600円~571,200円
- 管理準備金(お引渡し時一括払)
- 30,000円
- 申込受付場所
- すまいる館 四郷店
- その他
- ※お申し込みの際には印鑑(認印可)と2023年・2024年の収入証明書、又は直近3期分の確定申告書(写し)をご持参ください。 ※表示価格には消費税が含まれています。
- 販売開始予定時期
- 先着順申込受付中
- 取引条件の有効期限
- ページ上部に記載
Tステージ 豊田四郷 レガリア EAST【全体概要】
- 名称
- Tステージ 豊田四郷 レガリア EAST
- 所在地
- 愛知県豊田市四郷町森前南7-4
- 交通
- 愛知環状鉄道「四郷」駅徒歩2分
- 用途地域
- 近隣商業地域
- 建ぺい率/容積率
- 80%/200%
- 総戸数
- 55戸
- 敷地面積
- 2,325.45㎡
- 構造・規模
- 鉄筋コンクリート造地上14階建、耐震構造
- 建築確認番号
- 第ERI-21039425号(2021年(令和3年)12月7日)
- 間取り
- 2LDK・3LDK・4LDK
- 専有面積
- 75.46㎡~89.58㎡
- バルコニー面積
- 12.70㎡~17.20㎡
- サービスバルコニー面積
- 3.20㎡~4.56㎡
- テラス面積
- 12.70㎡~13.20㎡
- 駐車場
- 65台(自走式駐車場) ※4,000円~8,700円/月 ※PHV充電設備対応区画(16台)5,500円/月
- 自転車置場
- 55台(スライド式・屋根付き) ※100円/月
- バイク置場
- 2台(屋根付き) ※2,000円/月
- TVインターネット使用料
- 880円/月
- 竣工時期
- 2024年2月
- 入居時期
- 即入居可
- 分譲後の権利形態
- 所有権:敷地は共有、建物は区分所有
- 管理形態
- 区分所有者全員により管理組合を結成し、管理会社に委託していただきます。
- 管理方法
- 巡回管理
- 取引態様
- 売主
- 売主
- トヨタすまいるライフ株式会社
- 設計・監理
- 株式会社田中綜合設計
- 施工
- フジタ・太啓特定工事共同企業体
- 管理
- トヨタすまいるライフ株式会社
- その他
- ※本物件は定期借地権付物件ではございません(別途月払地代や解体準備金は不要)。定期借地権のように契約期間終了後に土地を返還する必要はございません。
最新情報
-
2025.10.02
SITE
Tステージ豊田四郷レガリアEAST Jタイプの間取りページを更新しました。
「広さの重要性」「価格との調和」「戸建比較」という3つの視点から間取りをご紹介いたします。 -
2025.09.15 INFO Tステージ豊田四郷レガリアEAST 販売状況(物件概要)を更新いたしました。
Kタイプ(3LDK)・Mタイプ(3LDK)は完売いたしました。 -
2025.09.12 INFO Tステージ豊田四郷レガリアEAST 物件申込キャンセル住戸を1邸限定(J301号室)特別価格にて販売いたします。
第4期2次住戸と同様に9月13日(土)より先着順にて販売いたします。 - 2025.09.01 SITE Tステージ豊田四郷レガリアEAST 「プロジェクトの魅力レポート」ページを公開いたしました。女優の真野恵里菜さんが特設ページにて四郷駅前マンションの魅力をご紹介します。
プラン

- タイプ
- 間取り
- 専有面積
- バルコニー面積
- 写真/間取り図
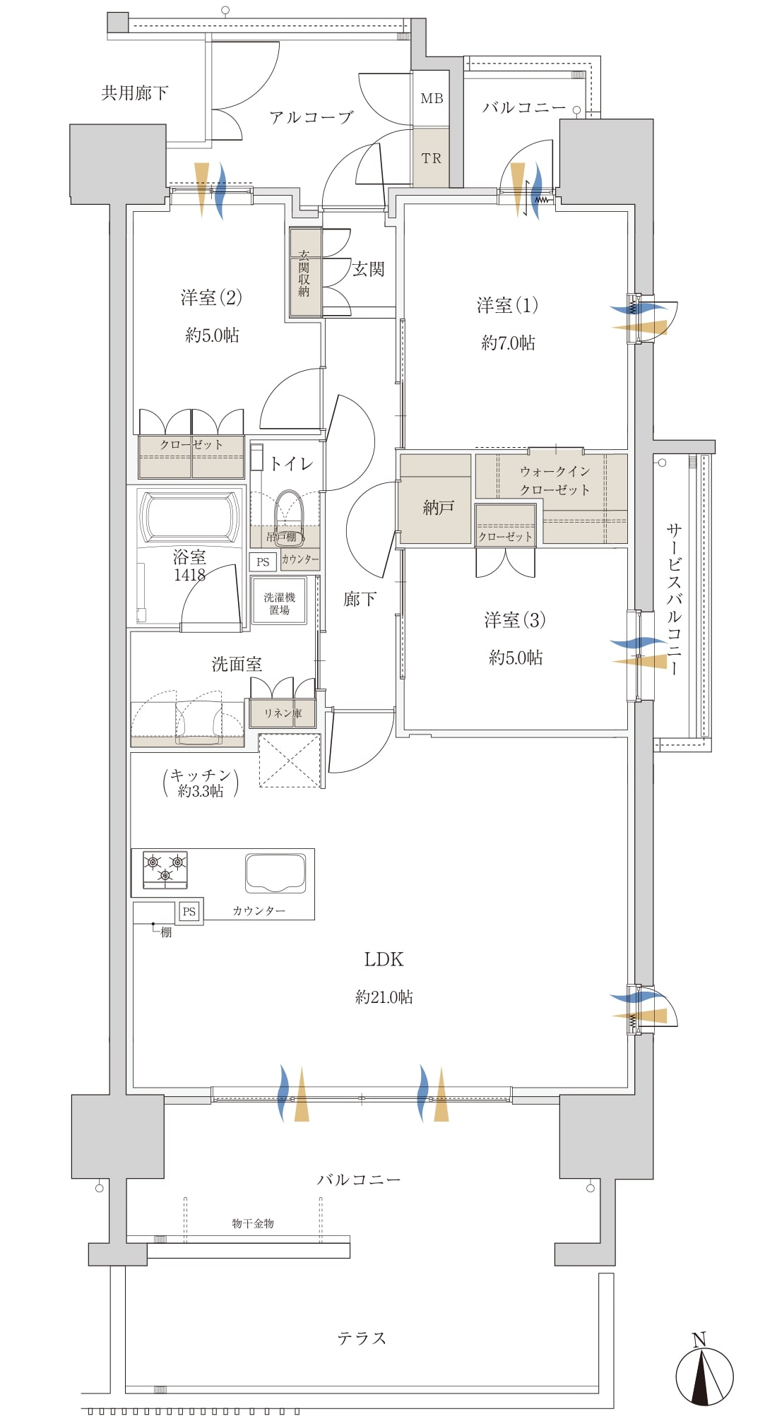
- J type
- 4LDK+WIC+N
- 89.58m²(27.09坪)
- 17.2m²(5.2坪)
- Mt type
- 3LDK+WIC+N+専用庭
- 84.74m²(25.63坪)
- 16.06m²(4.85坪)
- Kt type(未販売・案内所)
- 3LDK+WIC+N
- 76.67m²(23.19坪)
- 12.9m²(3.9坪)
-
- (完売)K type
- 3LDK+WIC+N
- 76.67m²(23.19坪)
- 12.9m²(3.9坪)
-
- (完売)M type
- 3LDK+WIC+N
- 84.74m²(25.63坪)
- 16.06m²(4.85坪)
-
- (完売)L type
- 2LDK+DEN+N
- 75.46m²(22.82坪)
- 12.7m²(3.84坪)
-
- (完売)Lt type
- 2LDK+DEN+N
- 75.46m²(22.82坪)
- 12.7m²(3.84坪)
-
動画
Tステージ豊田四郷レガリアEAST おすすめポイント3選
Tステージ豊田四郷レガリアプロジェクト 帰宅編
Tステージ豊田四郷レガリアプロジェクト 周辺環境編
Tステージ豊田四郷レガリアプロジェクト 駐車場編
Tステージ豊田四郷レガリアプロジェクト ロケーション編
パノラマ
Jタイプ(4LDK)パノラマツアー
周辺環境
-
愛知環状鉄道「四郷」駅 / 約160m(徒歩2分)
-
とよたおいでんバス「愛環四郷駅」停 / 約160m(徒歩2分)
-
名鉄豊田線「上豊田」駅 / 約1,430m(自転車6分)
-
東海環状自動車道「豊田環八」IC / 約4,770m(車8分)
-
四郷スマートタウン(複合商業施設) / 約200m(徒歩3分)
-
スーパーやまのぶ・ケーズデンキ豊田四郷店 / 約720m(徒歩9分)
-
ピネード 豊田店 / 約670m(徒歩9分)
-
JAあいち豊田 選果場 / 約660m(徒歩9分)
-
井上公園 / 約810m(徒歩11分)
-
ハートブレッドアンティーク 豊田店 / 約660m(徒歩9分)
-
豊田厚生病院 / 約3,530m(車6分)
-
斉藤病院 / 約330m(徒歩5分)
-
- 交通機関
-
- 愛知環状鉄道「四郷」駅 / 約160m(徒歩2分)
- とよたおいでんバス「愛環四郷駅」停 / 約160m(徒歩2分)
- 名鉄豊田線「上豊田」駅 / 約1,430m(自転車6分)
- 東海環状自動車道「豊田環八」IC / 約4,770m(車8分)
-
- 買物施設
-
- 四郷スマートタウン(複合商業施設) / 約200m(徒歩3分)
- ヘルスバンクヤナセ東海調剤薬局 四郷店 / 約290m(徒歩4分)
- V・drug 豊田四郷店・エディオン豊田四郷店 / 約440m(徒歩6分)
- JAあいち豊田 選果場 / 約590m(徒歩8分)
- スーパーやまのぶ・ケーズデンキ豊田四郷店 / 約720m(徒歩9分)
-
- 教育施設
-
- 豊田市立四郷小学校 / 約1,280m(徒歩16分)
- 豊田市井郷中学校 / 約1,820m(徒歩23分)
- 豊田市立梅坪こども園 / 約2,750m(車5分)
- 私立中央こども園 / 約1,300m(徒歩17分)
- 私立井上幼稚園 / 約1,380m(徒歩18分)
- 私立キンダーガルテン 梅坪保育園 / 約2,500m(車4分)
- 私立杜のひかりこども園 / 約2,460m(車4分)
- 私立まふみ幼稚園 / 約2,440m(車4分)
-
- 公共施設・公園
-
- 3号公園 / 約330m(徒歩5分)
- 下古屋児童遊園 / 約400m(徒歩5分)
- 四郷南公園 / 約430m(徒歩6分)
- 井上公園 / 約810m(徒歩11分)
- さなげアドベンチャーフィールド / 約2,060m(車4分)
- 豊田市消防本部 北消防署 / 約90m(徒歩2分)
- 豊田市 啓発・学習型リサイクルステーション / 約500m(徒歩7分)
- 豊田市役所 猿投支所 / 約700m(徒歩9分)
-
- 医療施設
-
- 豊田市こども発達センターのぞみ診療所 / 約2,630m(車4分)
- 四郷デンタルクリニック / 約350m(徒歩5分)
- 斉藤病院 / 約330m(徒歩5分)
- あんどう耳鼻咽喉科クリニック / 約680m(徒歩9分)
- こじま眼科 / 約750m(徒歩10分)
- おかもとクリニック / 約1,050m(徒歩14分)
- 豊田加茂医師会 休日救急内科診療所 / 約2,360m(車4分)
-
- その他
-
- JAあいち豊田 猿投支店 / 約660m(徒歩9分)
- 豊田信用金庫 猿投支店 / 約260m(徒歩4分)
- 豊田北郵便局 / 約510m(徒歩7分)
地図
この物件の資料請求・
お問い合わせ
物件情報・周辺環境・契約手続きについて等、ご不明な点がありましたら、お気軽にお問い合わせください。
すまいる館 四郷店
- 通話料無料0120-985-457