名古屋市緑区徳重三丁目 1号棟【新築】
戸建
●駅徒歩圏の新しく整った街並み! ●広々した上質で開放的なLDK! ●並列駐車3台可(車種による) ●太陽光パネル搭載!
- 仲介新築戸建
- 価格
- 5,790万円
- 間取り
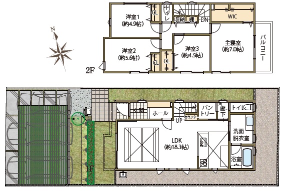
- 4LDK
- 面積
-
[土地]145.99㎡(44.16坪)
[建物]102.38㎡(30.96坪)
更新日:2025年10月06日 次回予定日・取引条件の有効期限:2025年10月20日

●外観
画像をクリックすると大きく表示します
-
●外観
-
●外観 1号棟 並列駐車3台可(車種による)
-
●玄関 家族の靴が収納できるシューズボックスがついています!
-
●LDK 約18.3帖 折上天井があり明るく開放感がある空間です!
-
●キッチン 対面式キッチンなら、料理・片づけたりしながらコミュニケーションがとれます。
-
●パントリー 食品のストックやお米などの置き場にも最適!
-
●窓もあり風通しのよい洗面脱衣室 鏡の裏にたくさんの小物をしまえる全収納タイプの洗面台!
-
●主寝室 約7.0帖
-
●WIC 衣類や荷物、大容量の収納が可能!
-
●階段 明るい陽射しが注ぎこむ安心の手摺付き!
-
●間取図 1号棟 4LDK、建物面積102.38㎡
-
●区画図 1号棟 土地面積145.99㎡
-
●生活利便施設が充実しています!
物件概要
中古戸建
- ●所在地/
- 名古屋市緑区徳重三丁目
- ●交通/
- 地下鉄桜通線「徳重」駅 約1,130m 徒歩15分
- ●土地面積(私道負担)/
- 145.99㎡(44.16坪)
- ●建物面積/
- 102.38㎡(30.96坪) 1階:48.86㎡ 2階:53.52㎡
- ●建物構造/
- 木造 合金メッキ鋼板葺 2階建
- ●土地権利/
- 所有権
- ●地目/
- 雑種地
- ●建築年月/
- 2025(令和7)年7月
- ●間取り/
- 4LDK+WIC
- ●駐車場/
- 並列3台可(車種による)
- ●接道状況/
- 西側 公道幅員約6.0mに約7.29m接道
- ●都市計画/
- 市街化区域
- ●用途地域/
- 第一種低層住居専用地域
- ●建ぺい率/
- 40%
- ●容積率/
- 80%
- ●地勢/
- 平坦
- ●現況/
- 空家
- ●引渡/
- 即時
- ●設備/
- 水道・下水・電気・都市ガス
- ●その他法令/
- 法22条区域・宅地造成及び特定盛土等規制法・徳重東部第二地区計画・第二種風致地区
- ●建築確認番号/
- 第KS125-0410-52469号
- ●学区/
- 徳重小学校・扇台中学校
- ●取引態様/
- 仲介
- ●物件担当者/
- 井下
備考
●駅徒歩圏の新しく整った街並み!
●広々した上質で開放的なLDK!
●並列駐車3台可(車種による)
●太陽光パネル搭載!
●周辺生活利便施設が充実!
●長期優良住宅!
●省令準耐火構造!
●耐震等級3取得!
●全室照明器具付!
不動産は現地・現物が大切です。図面や写真だけでは分からないことがございます。
お客様にはぜひ現地を見ていただきたく思います。
実際に足を運んでいただくと、現地の状況や周辺の環境等を感じていただけます。
不動産のプロとして資金計画やマーケットに関するご説明差し上げます。
ご遠慮なくご相談ください。
担当:井下
区画図/間取り

周辺環境
-
- 交通機関
-
- 名古屋地下鉄桜通線「徳重」駅 / 約1,130m(徒歩15分)
- 名鉄三河線・名古屋地下鉄鶴舞線「赤池」駅 / 約5,800m(車15分)
- 名鉄名古屋本線「有松」駅 / 約5,900m(車16分)
- 名鉄バス「緑文化小劇場」停 / 約1,140m(徒歩15分)
- 名古屋市営バス「徳重小学校」停 / 約560m(徒歩7分)
-
- 買物施設
-
- アピタ 緑店 / 約560m(徒歩7分)
- セブンイレブン 名古屋徳重3丁目店 / 約240m(徒歩3分)
- V・drug 徳重店 / 約930m(徒歩12分)
- カネスエ徳重店 / 約310m(徒歩4分)
-
- 教育施設
-
- 名古屋市立徳重小学校 / 約560m(徒歩7分)名古屋市立扇台中学校 / 約1,100m(徒歩14分)徳重清凉保育園 / 約710m(徒歩9分)
-
- 公共施設・公園
-
- 徳重東公園 / 約150m(徒歩2分)
- 通曲公園 / 約710m(徒歩9分)
-
- 医療施設
-
- 徳重ながさわクリニック / 約820m(徒歩11分)
-
- その他
-
- JAみどり徳重支店 / 約1,130m(徒歩15分)
- 名古屋徳重郵便局 / 約880m(徒歩11分)
地図
この物件の資料請求・
お問い合わせ
物件情報・周辺環境・契約手続きについて等、ご不明な点がありましたら、お気軽にお問い合わせください。
すまいる館 流通店
- 通話料無料0120-983-098
- FAX0565-24-7556