豊田市高美町7丁目
戸建
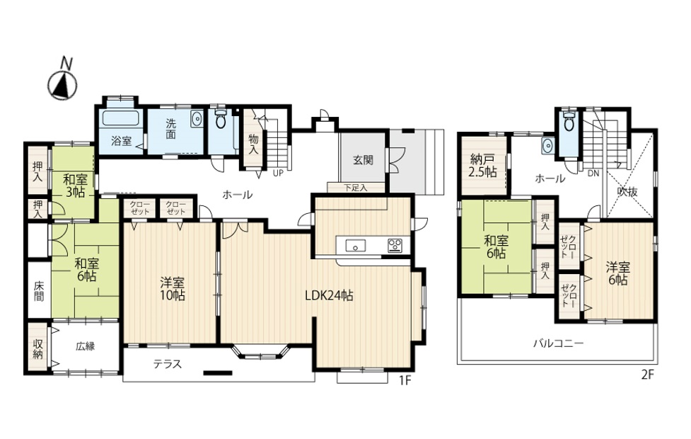
●一条工務店の免震住宅!●南東角地!●土地面積116坪超●LDK24帖の大空間確保!
- NEW
- 価格
- 5,500万円
- 間取り
- 5LDK+納戸
- 面積
-
[土地]386.14㎡(116.8坪)
[建物]167.12㎡(50.55坪)
更新日:2025年10月23日 次回予定日・取引条件の有効期限:2025年11月06日
●外観 一条工務店施工の免震住宅!
画像をクリックすると大きく表示します
-
●外観 一条工務店施工の免震住宅!
-
●LDK 24帖!広々とした空間です!
-
●リビング
-
●ダイニング 2面採光で明るく通風良好です!
-
●キッチン 勝手口があり、家事動線良好です♪
-
●1階洋室 10帖
-
●1階和室 6帖
-
●1階和室 3帖
-
●洗面室 窓があり、明るく通風良好です!
-
●浴室 窓があり通風良好!換気も楽々です♪
-
●浴室 窓があり換気も楽々です♪
-
●階段
-
●2階洋室 6帖
-
●2階和室 6帖
-
●2階にも洗面化粧台があり、忙しい時間帯も安心です!
-
●2階トイレ 通風良好です!
-
●階段~玄関ホール
-
●玄関~ホール
-
●東南角地!陽当たり良好です!
-
●東南角地!陽当たり良好です!
-
●外観南側より撮影
-
●お庭 西側より撮影
-
●東側接道 南側より撮影
-
●南側接道 東側より撮影
物件概要
中古戸建
- ●所在地/
- 豊田市高美町7丁目
- ●交通/
- 名鉄三河線 「竹村」駅 約 m 徒歩18分
- ●土地面積(私道負担)/
- 386.14㎡(116.80坪)
- ●建物面積/
- 167.12㎡(約50.55坪) 1階:123.65㎡ 1階:43.47㎡
- ●建物構造/
- 木造 瓦葺 2階建
- ●土地権利/
- 所有権
- ●地目/
- 宅地
- ●建築年月/
- 2001(平成13)年9月
- ●間取り/
- 5LDK+納戸
- ●駐車場/
- 縦列2台(車種による)
- ●接道状況/
- 東側 公道幅員約7.7mに約13.6m接道・南側 公道幅員約6.1mに約20.5接道
- ●都市計画/
- 市街化区域
- ●用途地域/
- 第一種低層住居専用地域
- ●建ぺい率/
- 60%
- ●容積率/
- 100%
- ●地勢/
- 高台
- ●現況/
- 居住中
- ●引渡/
- 相談
- ●設備/
- 水道・下水・電気・都市ガス
- ●その他法令/
- 法22条区域・宅地造成及び特定盛土等規制法・がけ条例・特定都市河川
- ●学区/
- 若林西小学校・高岡中学校
- ●取引態様/
- 仲介
- ●リフォーム履歴/
- ●2022年頃:トイレ便座交換 ●2021年頃:防蟻処理 ●2020年頃:コンロ交換 ●2018年頃:浴暖リフォーム ●2015年頃:給湯器リフォーム ●2011年頃:メンテナンス工事(外部塗装、屋根漆喰、バルコニー改修、防蟻処)
- ●物件担当者/
- 山田
備考
【リフォーム履歴】
●2022年頃:トイレ便座交換
●2021年頃:防蟻処理
●2020年頃:コンロ交換
●2018年頃:浴暖リフォーム
●2015年頃:給湯器リフォーム
●2011年頃:メンテナンス工事(外部塗装、屋根漆喰、バルコニー改修、防蟻処)
不動産は現地・現物が大切です。
図面や写真だけでは分からないことがございます。お客様にはぜひ現地を見ていただきたく思います。
実際に足を運んでいただくと、現地の室内や周辺の環境等を感じていただけます。
不動産のプロとして資金計画やマーケットに関するご説明を差し上げます。
遠慮なくご相談ください。
担当:山田
区画図/間取り
周辺環境
-
- 交通機関
-
- 名鉄三河線 「竹村」駅 / 約1,350m(徒歩17分)
-
- 買物施設
-
- ファミリーマート 豊田広田南店 / 約650m(徒歩9分)
- スギ薬局 竹村店 / 約950m(徒歩12分)
- JAあいち豊田 産直市場 いこまい若林 / 約1,260m(徒歩16分)
- ドミー 若林店 / 約1,400m(徒歩18分)
-
- 教育施設
-
- 豊田市立若林西小学校 / 約1,370m(徒歩18分)豊田市立高岡中学校 / 約2,120m(徒歩27分)豊田市立高美こども園 / 約900m(徒歩12分)
-
- 医療施設
-
- 名豊病院 / 約930m(徒歩12分)
-
- その他
-
- JAあいち豊田竹支店 / 約1,140m(徒歩15分)
- 豊田中町郵便局 / 約820m(徒歩11分)
地図
この物件の資料請求・
お問い合わせ
物件情報・周辺環境・契約手続きについて等、ご不明な点がありましたら、お気軽にお問い合わせください。
すまいる館 流通店
- 通話料無料0120-983-098
- FAX0565-24-7556