Details
ユニーブル代官町 10階
マンション
■トヨタホームによるフルリノベーション済みマンション! ■10階部分の南向き角部屋 ■桜通線、東山線の2路線が利用可能!
- リノベーション済物件
- 価格
- 3,980万円
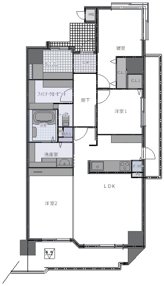
- 間取り
- 2SLDK
- 面積
-
[専有]壁芯:86.01㎡(26.01坪)
[バルコニー]16.15㎡(4.88坪)
更新日:2026年03月05日 次回予定日・取引条件の有効期限:2026年03月19日
外観
画像をクリックすると大きく表示します
物件概要
中古マンション
- ●所在地/
- 名古屋市東区代官町
- ●交通/
- 地下鉄桜通線「高岳」駅 歩約11分 約860m ・ 地下鉄東山線 「新栄町」駅 徒歩12分 約960m
- ●専有面積(壁芯)/
- 86.01㎡/26.01坪
- ●バルコニー面積/
- 16.15㎡/4.88坪(2箇所合計)
- ●間取り/
- 2SLDK
- ●構造・階数/
- 鉄骨鉄筋コンクリート造15階建 10階部分
- ●総戸数/
- 34戸
- ●都市計画/
- 市街化区域
- ●用途地域/
- 商業地域・近隣商業地域
- ●土地権利/
- 所有権
- ●建築年月/
- 1999(平成11)年10月
- ●現況/
- 空家
- ●引渡し/
- 即時
- ●管理費(月額)/
- 16,300円
- ●修繕積立金(月額)/
- 20,640円
- ●駐車場(月額)/
- 空無 ※2025年7月15日現在
- ●管理形態/
- 全部委託/巡回
- ●分譲会社/
- 株式会社ユニホー
- ●管理会社/
- 株式会社ライフポート西洋
- ●設備/
- エレベーター・宅配ボックス・都市ガス、公営水道、公共下水、電気
- ●学区/
- 東白壁小学校/冨士中学校
- ●ペット飼育/
- 可(規約あり)
- ●取引態様/
- 仲介
- ●備考/
- 敷地共有持分:8198/258018
- ●リフォーム履歴/
- 2023年10月工事完了:スケルトンリフォーム 、キッチン交換(LIXIL)、ユニットバス交換(LIXIL)、洗面台交換(LIXIL) 、トイレ交換(LIXIL)、全室クロス張替え、全室床フロア張り 、ハウスクリーニング
- ●物件担当者/
- 平井
備考
■トヨタホームによるフルリノベーション済みマンション
■各居室収納に加え、0.5帖のパントリーやSIC、FCL、洗面収納等を備えた高い収納力♪
■幅約1.4mのゆったりとした廊下により、車椅子の方も安心◎
■収納力の高いオープンSICにより、玄関の解放感も演出!
■LDKは間仕切り壁の設置により3LDKへの変更も可能!
■ペット飼育可能(管理規約による制限有)
■10階部分の南向き角部屋
■地下鉄桜通線、東山線の2路線が利用可能!
■スーパーやドラックストア、コンビニも近くにあり充実の住環境♪
■フルリノベーション済み(2023年10月工事完了)
〇スケルトンリフォーム
〇キッチン交換(LIXIL)
〇ユニットバス交換(LIXIL)
〇洗面台交換(LIXIL)
〇トイレ交換(LIXIL)
〇全室クロス張替え
〇全室床フロア張り
〇ハウスクリーニング
不動産は現地・現物が大切です。
実際に足を運んでいただくと、現地の室内や周辺の環境等を感じていただけます。
ぜひ、お気軽にお問合せください
担当:平井
周辺環境
-
- 交通機関
-
- 地下鉄桜通線「高岳」駅 / 約860m(徒歩11分)
- 地下鉄東山線 「新栄町」駅 / 約960m(徒歩12分)
- 地下鉄桜通線「車道」駅 / 約1,040m(徒歩13分)
-
- 買物施設
-
- マックスバリュ代官山 / 約95m(徒歩2分)
- セブンイレブン名古屋泉3丁目店 / 約265m(徒歩4分)
- ローソンストア100泉飯田町店 / 約395m(徒歩5分)
- スギ薬局東区役所前店 / 約420m(徒歩6分)
- ウエルシア名古屋代官町店 / 約445m(徒歩6分)
-
- 教育施設
-
- 東白壁小学校 / 約705m(徒歩9分)冨士中学校 / 約1,455m(徒歩19分)明星幼稚園 / 約270m(徒歩4分)
-
- 公共施設・公園
-
- 東区役所 / 約435m(徒歩6分)
- 名古屋城 / 約2,805m(徒歩36分)
-
- 医療施設
-
- 山本内科 / 約320m(徒歩4分)
- AOI名古屋病院 / 約625m(徒歩8分)
-
- その他
-
- 名古屋銀行平田町支店 / 約110m(徒歩2分)
- 名古屋代官郵便局 / 約455m(徒歩6分)
地図
この物件の資料請求・
お問い合わせ
物件情報・周辺環境・契約手続きについて等、ご不明な点がありましたら、お気軽にお問い合わせください。
すまいる館 不動産査定センター赤池駅前店
- 通話料無料0120-850-905
- FAX052-848-7710