Details
みよし市黒笹いずみ1丁目
戸建
■名鉄豊田線「黒笹」駅まで徒歩5分! ■2.8mの高天井が連続したLDK ■キッチンに大型食器棚+パントリーと収納充実
- 価格
- 3,880万円
- 間取り
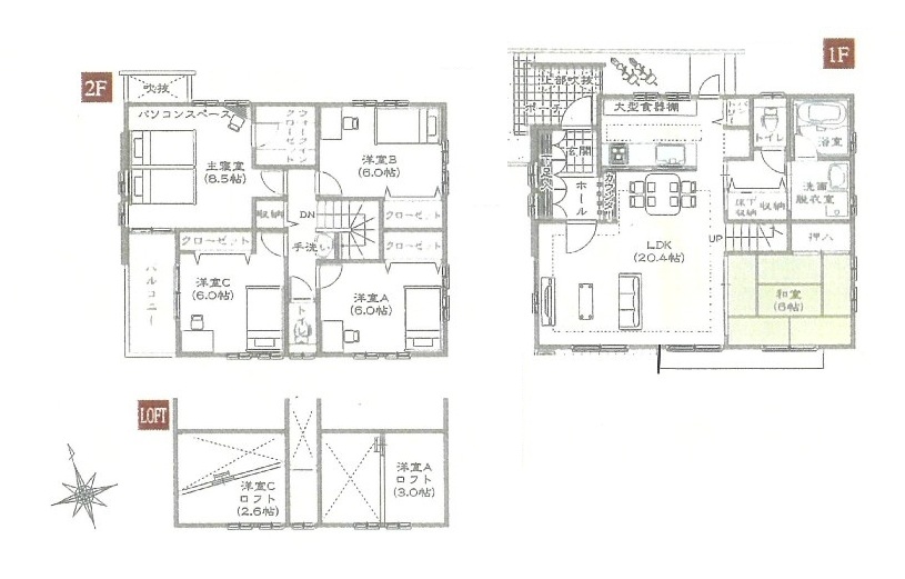
- 5LDK+WIC+ロフト
- 面積
-
[土地]221.9㎡(67.12坪)
[建物]125.66㎡(38.01坪)
更新日:2026年03月23日 次回予定日・取引条件の有効期限:2026年04月06日
外観
画像をクリックすると大きく表示します
物件概要
中古戸建
- ●所在地/
- みよし市黒笹いずみ1丁目
- ●交通/
- 名鉄豊田線「黒笹」駅 徒歩5分 約350m
- ●土地面積(私道負担)/
- 221.90㎡(約67.12坪)
- ●建物面積/
- 125.66㎡(約38.01坪)
- ●建物構造/
- 木造スレート葺2階建
- ●土地権利/
- 所有権
- ●地目/
- 宅地
- ●建築年月/
- 2011(平成23)年 4月築
- ●間取り/
- 5LDK+WIC+ロフト
- ●駐車場/
- 2台(車種による)
- ●接道状況/
- 西側公道幅員約6.0mに4.19m接道
- ●都市計画/
- 市街化区域
- ●用途地域/
- 第1種住居地域
- ●建ぺい率/
- 60%
- ●容積率/
- 200%
- ●現況/
- 空家
- ●引渡/
- 相談
- ●設備/
- 公営水道・公共下水・都市ガス・電気
- ●その他法令/
- 宅地造成及び特定盛土等規制法・がけ条例・住環境保全区域C
- ●学区/
- 黒笹小学校・三好丘中学校
- ●取引態様/
- 仲介
- ●物件担当者/
- 平井
備考
■名鉄豊田線「黒笹」駅まで徒歩5分!
■スーパーやドラックストア、コンビニも近くにあり充実の住環境♪
■2.8mの高天井が連続したLDK!
■LDKに床暖あり!
■キッチンに大型食器棚+パントリーと収納充実♪
■天井高4.8mのロフト付き洋室2部屋!
■1階一部窓に電動シャッター採用!
不動産は現地・現物が大切です。
図面や写真だけでは分からないことがございます。
実際に足を運んでいただくと、現地の室内や周辺の環境等を感じていただけます。
不動産のプロとして資金計画やマーケットに関するご説明を差し上げます。
遠慮なくご相談ください。
担当:平井
周辺環境
-
- 交通機関
-
- 名鉄豊田線「黒笹」駅 / 約350m(徒歩5分)
- 名鉄豊田線「三好ヶ丘」駅 / 約2,370m(徒歩30分)
- さんさんバス「黒笹駅」停 / 約350m(徒歩5分)
-
- 買物施設
-
- ピアゴ黒笹店 / 約275m(徒歩4分)
- メグリア三好店 / 約3,010m(徒歩38分)
- セブンイレブンみよし黒笹店 / 約710m(徒歩9分)
- スギドラッグ黒笹店 / 約350m(徒歩5分)
-
- 教育施設
-
- 市立 黒笹小学校 / 約875m(徒歩11分)市立 三好丘中学校 / 約2,895m(徒歩37分)黒笹保育園 / 約1,380m(徒歩18分)
-
- 公共施設・公園
-
- 寺山公園 / 約550m(徒歩7分)
-
- 医療施設
-
- みよしうちだハートクリニック / 約765m(徒歩10分)
地図
この物件の資料請求・
お問い合わせ
物件情報・周辺環境・契約手続きについて等、ご不明な点がありましたら、お気軽にお問い合わせください。
すまいる館 不動産査定センター赤池駅前店
- 通話料無料0120-850-905
- FAX052-848-7710